
波動篩分機概述:
波動篩煤機是火力發電廠輸煤系統中的篩分設備。原煤經過篩分,符合粒度要求的小顆粒煤,在篩機篩軸旋轉力作用下被排到篩面下,直接由帶式輸送機送走;不符合粒度要求的大顆粒煤,在篩面上經一排按同一個方向旋轉軸作用向前運動,被送入碎煤機中破碎后,再由帶式輸送機送走。波動篩可防止一般振動篩分機械的堵塞現象,適用于電廠原煤中含水份較大的工況下運行。
BS型變傾角等厚波動篩,篩面傾角依次變化,角度逐漸變小,實現快速等厚篩分,不易堵篩,適用于大水分粘煤的篩分。
BS型波動篩,篩面處于同一平面,整個篩面呈一個角度,結構簡潔,篩分物料流暢,占地空間小。
河南奧創機械自上世紀80年代開始生產篩分設備,先后研制了波動篩、諧波篩、篩軸平面篩、振動概率篩等,已生產各類篩分設備1千余臺。變傾角等厚滾軸篩是集所有形式滾軸篩優點于一體的新型篩機,其性能更優越,對物料的適應能力更強。
波動篩分機工作原理:
本機是利用機械方法,通過多排并列在轉子上在特制篩片構成多變的篩孔組成其篩面,轉子以同向等速做周向旋轉,使其篩面上煤料借助桃形篩片交錯回轉,并以波動形式向前運動,從而達到高效篩分目的。
隨著經濟的快速發展,現代工業的大型化系統化,科技日益更新,人們對礦石的需求量也越來越大。但同時,由于礦產的過度開發使得巖石趨向低品質化。為此,針對這種易碎裂,抗壓強度中等的礦材,需要一種適合的篩分機篩分。波動篩無論其功能還是工作的穩定性和效率,都是不二的選擇。它將會是未來水泥礦石等礦業篩分體系的主流設備。在確保篩分效率和篩機工作性能的同時追求大型化和系列化也是一個重要的發展方向。
波動篩分機結構特點:
本產品具有體積小、篩分效率高、出力大、且能自動清理篩面、不堵篩、適應性廣、篩機無振動、無粉塵、噪聲小等特點。本機具有旁路裝置,可實現自動控制。

BS系列波動篩分機是一種為未經篩選的原煤篩分設計的專用篩分設備,用于碎煤機之前,可將未經篩選的各種不同規格的顆粒物料分級篩分,得到所需的出料粒度,以滿足電站的需要。本產品是火力發電廠輸煤系統的重要設備之一,在冶金、化工、建材、煤炭等系統也可廣為利用.
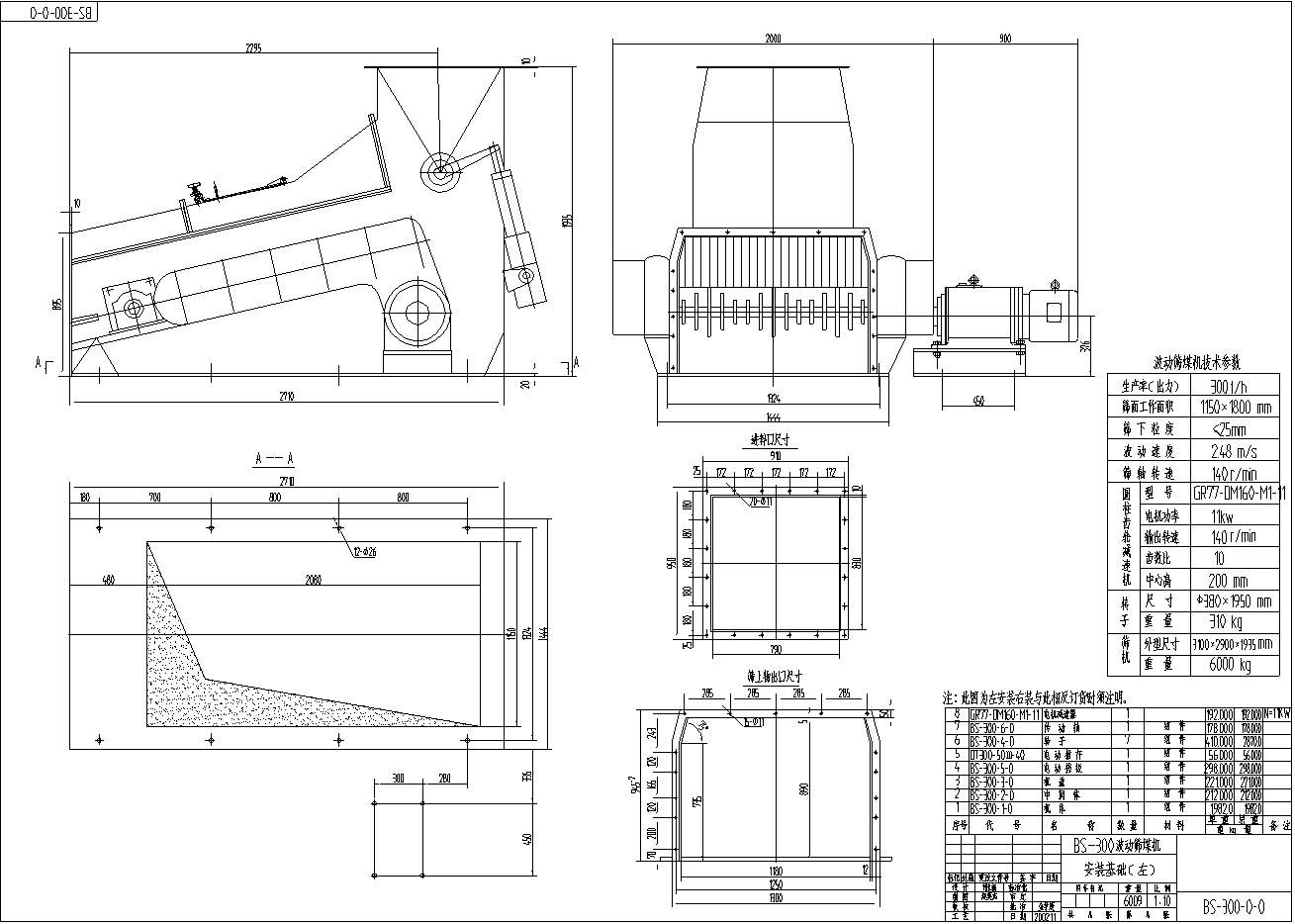
篩分機技術參數:

操作維護及檢修:
一、工作時,首先開車,然后加入待篩分物料,否則會造成機器損傷,降低機器使用壽命。
二、在機器使用過程中,每次開機前必須檢查機器內是否存有物料。
三、應先開機,后給料。停機時,應先停料,后關機。確保停前機器內沒有物料。
四、禁止帶負荷開機。
五、每三個月向軸承內部加注潤滑油一次。
六、機器投入使用后三個月檢修一次。
七、當篩片受損嚴重后,不能達到篩分目的時,應及時更換新的篩片。
河南奧創機械設備結構圖紙、價格計算,歡迎實地考察!
訂購網址請登錄河南奧創機械有限公司官方網站:m.royalgrace.cn 24小時服務熱線:13353676726